一氧化碳是無色,無臭,無味氣體,吸入對人體有大的傷害。它會結合血紅蛋白生成碳氧血紅蛋白導致人體缺氧。人體最常見的一氧化碳中毒癥狀,如頭痛、惡心、嘔吐、頭暈、疲勞和虛弱的感覺,長期在一氧化碳氣體中可能嚴重損害心臟和中樞神經系統,對人體會產生后遺癥。因此,地下停車場應配有送、排風系統,用新鮮空氣進行置換。
無錫沃思智能科技有限公司按照相關技術標準研發了地下停車場空氣質量監控系統-CO濃度監控系統,該系統是集工業計算機技術、通訊、抗電磁干擾、數字傳感技術及工業現場總線技術于一體的智能化系統,可對地下停車場一氧化碳濃度進行24小時實時自動巡檢,對一氧化碳濃度超過標準的區域給出報警提示,并聯動開啟機械送風系統,控制一氧化碳濃度在安全范圍內。
1、系統組成
地下室CO濃度監控系統由下列設備組成:
WSI(CO濃度監控器主機以下簡稱監控器);
WSI 空氣質量控制器 (CO濃度控制器以下簡稱控制器);
WSI(CO濃度探測器以下簡稱探測器);
WSI 溫濕度傳感器(以下簡稱傳感器);
貫徹相關國家標準
中華人民共和國國家標準GB50016 -2014《建筑設計防火規范》;
中華人民共和國國家標準GB51251-2017《建筑防煙排煙系統技術規范》;
中華人民共和國國家標準GB/T50378《綠色建筑評價標準》;
中華人民共和國行業標準JGJ/T229-2010《民用建筑綠色設計規范》;
地方標準DGJ32J173-2014《江蘇省綠色建筑設計標準》;
標準摘要
中華人民共和國國家標準GB/T50378《綠色建筑評價標準》;
8.2.13地下車庫設置與排風聯動的一氧化碳濃度監測裝置;
中華人民共和國行業標準JGJ/T229-2010《民用建筑綠色設計規范》;
9.5.5設置機械通風的汽車庫,宜設置一氧化碳檢測和控制裝置控制通風系統運行;
地方標準DGJ32J173-2014《江蘇省綠色建筑設計標準》;
8.5.3設有機械通風的地下車庫應對CO濃度進行實時監測和控制,濃度探測器應置于通風良好的人群活動區域;
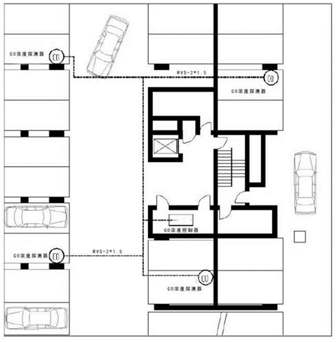
CO濃度監控系統是由 空氣質量控制器、一氧化碳CO濃度控制器、一氧化碳CO濃度探測器組成的。圖 1.1為系統示意圖

空氣質量控制器產品參數:

- 技術參數
監測對象:一氧化碳CO探測器
工作電壓:AC220V±15%/50Hz
負載: ≤ 60個探測器
配接探測器:RXPF – CO
功耗:≤ 10W(不含探測器)
通訊方式:POWERBUS二總線
傳輸距離:≤1000m(2×1.5mm2)
顯示方式:彩屏顯示
報警方式:聲光報警
安裝方式:壁掛式、導軌式

技術參數
監測對象:地下室一氧化碳濃度
工作電壓:DC24V
配接控制器:CO濃度控制器
功耗:≤0.5W
通訊方式:POWERBUS二總線
傳輸距離:≤1000m(2×1.5mm2)
顯示方式:數碼管顯示
報警方式:聲光報警
空氣質量控制器(CO濃度監控器)的安裝布線
1. CO濃度監控器與 CO濃度控制器布線
CO濃度監控器可出兩個回路,每個回路最多可帶載 128只 CO濃度控制器,每個控制器可帶載 60個 CO濃度探測器點位。
2) CO濃度監控器的安裝:CO濃度監控器(主機)設置在消防控制室,主顯示屏距地面高 1.3-1.5m,距門軸處大于 1.5m。
3) CO濃度監控器與 CO濃度控制器之間使用 T型或鏈式連接。
4) CO濃度監控器與 CO濃度控制器之間,CO濃度控制器與 CO濃度控制器之間使用 NH-RVS-2×1.5mm2雙絞線。
2. CO濃度探測器、控制器的安裝位置
1) CO濃度探測器安裝在地下車庫空氣流通的位置,每 300~400平米設置 1個檢測點位,探測器之間設置間距≤20m,CO濃度探測器設置高度為底
邊距離地面高 1.5m。
2)控制器安裝在排(煙)風機控制箱內(推薦),也可單獨設置在控制箱內(由廠家配套,需單獨采購)。
3.連線方式及線纜的型號
1)探測器與控制器、探測器與探測器之間使用二總線方式連接,電源線與
信號線共用,線型為 NH-RVS-2×1.5mm2,連接方式為“T”連接或鏈式連接。
2) CO濃度控制器與 CO濃度監控器(主機)之間使用 CAN總線通訊,線型為 NH-RVS-2×1.5mm2,連接方式為“T”連接或鏈式連接。
3) CO濃度控制器與 CO濃度監控器(主機)供電電源為 AC220V,電源線線型為 NH BV-3×2.5㎜2。
4.預埋管及預埋盒
1) JDGφ20套接緊定式鍍鋅導管(推薦)φ16.φ20.φ25.φ32.φ40。
2) KBG.國標扣壓式線管。
3) 86型預埋盒。
CO濃度探測器的安裝
1. CO濃度探測器平面安裝圖

圖 3.1
2. CO濃度探測器立面安裝圖

圖 3.2
3.安裝步驟說明
1)先將五金支架固定在 86盒上
2)通過撥碼開關進行編碼
3)接線,并將接好線的 CO濃度探測器固定到五金支架上
4. CO濃度探測器安裝實樣圖
圖 3.4.1 CO濃度探測器安裝效果
5. CO探測器接線方式
1) CO濃度探測器與 CO濃度探測器、CO濃度探測器與 CO濃度控制器的連線允許使用“T”式接線法或鏈式連接。
2) CO濃度探測器與 CO濃度探測器、CO濃度探測器與 CO濃度控制器的連線的線型為 NH-RVS-2×1.5mm2。
3) CO濃度探測器與 CO濃度探測器、CO濃度探測器與 CO濃度控制器的連線同一極性應使用相同顏色“+”極使用紅色、“-”極使用藍色。
四、CO濃度控制器的安裝
1. CO濃度控制器的安裝位置
1)安裝在風機配電箱內。
圖 4.1.1
2)安裝在獨立的控制箱內(控制箱需另購)
2. CO濃度控制器的外形尺寸:130mm(長)X 95mm(寬)X 58mm(深)
CO濃度控制器的使用環境為-10℃~+70℃、超出范圍時應采用保溫和通風措施。
